
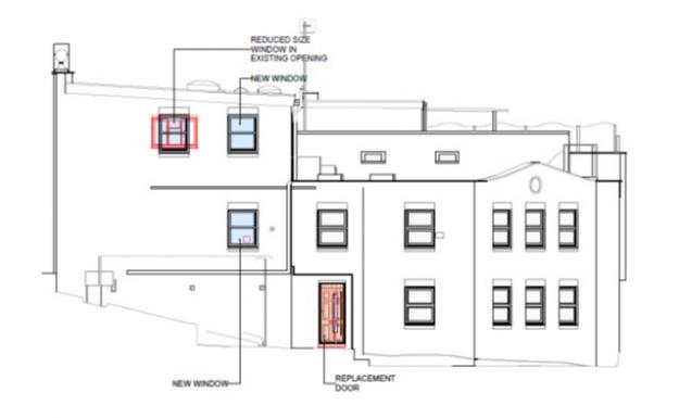
Alterations to Three Storey Property Approved
September
2025
Haslemere, Surrey
Following a previous approval for change of use of an existing office to residential, Matt has been able to secure permission for alterations to the building to improve its aesthetic appearance. By following such a process Matt has been able to secure that the existing building could be changed to a residential property in both use and form. The application allowed for new windows, doors and general enhancements which will result in a higher standard of accommodation ensuring the amenities of the future occupiers are to the highest level.
Do get in touch if you think that D&M Planning can assist with your proposal.




